Nantes (Loire-Atlantique)
Le «Grand Bain» de l’Ouvre-Boîte s’installe aux Bains Douches allée Baco
Patrimoine
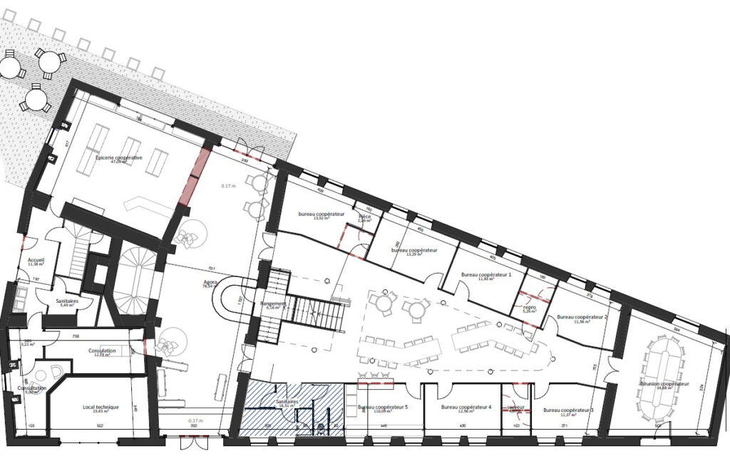
Le projet Le Grand Bain de l’Ouvre-Boîtes 44, coopérative d’activités et d’emplois nantaise, a été lauréat de l’appel à projets portant sur 15 lieux emblématiques de la Ville de Nantes : le projet propose un lieu mêlant un espace de coworking, une épicerie solidaire, une boutique éphémère, un espace bien-être et les bureaux de L’Ouvre-Boîtes sur le site des anciens Bains-Douches municipaux.
Dans ce lieu chargé d’histoire, l’agence a pour rôle d’organiser une rénovation complète, dans un site en partie occupé, en respectant le bâtiment, tout en améliorant les espaces pour des usages résolument contemporains.
- Maître d’ouvrage : L’Ouvre-Boîtes 44
- Maître d’œuvre : SoléCité – LucÌD
- Mission : Mission complète
- Programme : Amélioration et réaménagement intérieur – Programme mixte : épicerie solidaire /Locaux de l’Ouvre Boîtes/Salle de coworking
- Surface Plancher : 800 m²
- Budget : 222 000€ HT
- Dates : Chantier réceptionné en février 2021
Découvrez aussi dans ce domaine :







